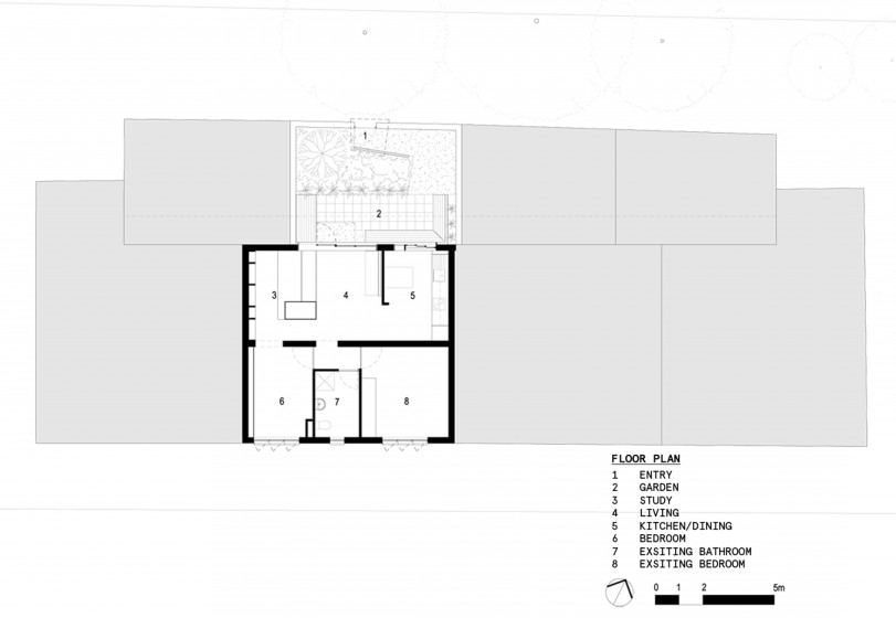
FOL Studio + Garden
New Farm, Brisbane
Alterations to existing ground floor apartment and insertion of new openings and garden. New plywood joinery and shelving to studio, with timber framed glazing, and external timber benches.
Completed in February, 2007.
Client: Fiona Foley
Project Team: Kevin O'Brien (Project Architect), Lachlan Nielsen
Construction: Lachlan Nielsen (Nielsen Workshop), Kevin O'Brien
Photos: Camera Obscura
