ARC House
West End, Brisbane
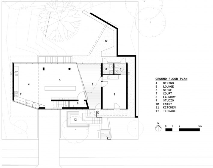
New house and studio with a central courtyard. Off form concrete structure and interiors, with timber cladding externally, and polycarbonate curtain walls.
Began August 2009, completed August 2012.
Client: Susan Ellison
Project Team: Kevin O'Brien (Project Architect), Susan Ellison, Claire Humphreys, Morgan Jenkins, Lachlan Nielsen, Tina Tam, Jenny Walsh, Akari Yokokawa.
Structural Engineering: Adrian Dine (AD Design), Tim Hall (Tim Hall & Associates)
Hydraulic Engineering: David Mitmannsgruber (Interior Engineering)
Certification: Grant Johnsen (Complete Building Certification)
Construction: Susan Ellison (Owner Builder)
