PRU House Addition
Clayfield, Brisbane
In association with David Hanson.
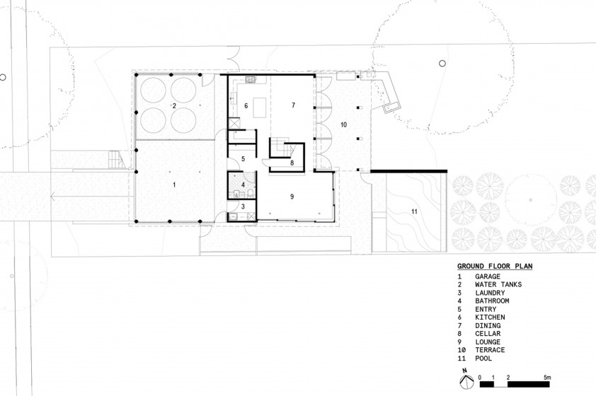
Alteration and additions to existing house. New void with concrete slab, central stair and external seating, with timber framed glazing and tiled pool.
Completed 2012.
Project Team: David Hanson (Project Architect), Kevin O'Brien, Tina Tam.
Structural Engineering: Marie-Claire Payne (Terrell)
Service Engineering: Interior Engineering
Construction: Crocker Builders
