QMU Dandiri Maiwar
Queensland Museum, Brisbane
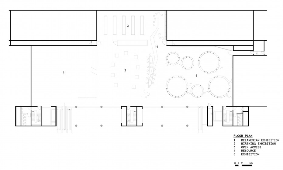
The project required a new setting for an Aboriginal and Torres Strait Islander cultures centre within the Queensland Museum. The design provides artifacts display, exhibition and curatorial display, and research and meeting spaces.
Completed in June, 2006.
Client: Queensland Museum.
Project Team: Kevin O'Brien (Project Architect), Neil Wilson.
