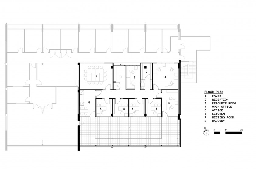
NAT Offices
Nathan Campus, Brisbane
New office fit out for GUMURRII student support services.
Completed 2012.
Client: Griffith University
Project Team: Kevin O'Brien (Project Architect), Jacque Jones (Interior Design), David Hanson, Tina Tam.
