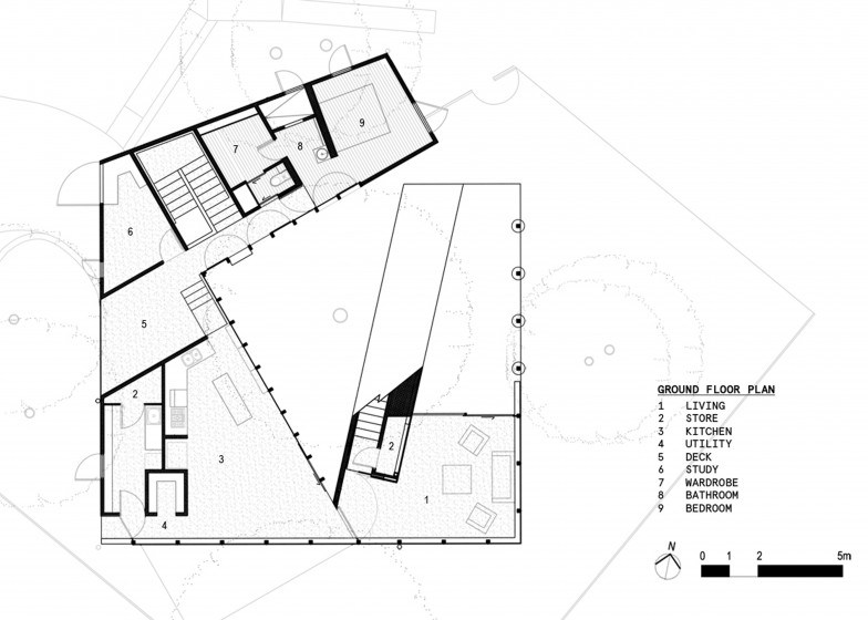
JUL House
St Lucia, Brisbane
In association with Claire Humphreys.
New house on escarpment around building covenants and beside waterway. Concrete slab, steel and timber structure with timber cladding externally, polycarbonate curtain wall, timber and steel framed glazed and plasterboard lining internally.
Completed 2014.
Client: Withheld
Project Team: Claire Humphreys (Project & Design Architect), Kevin O'Brien
Structural Engineer: Marie-Claire Payne (Terrell)
Services Engineer: Interior Engineering
Construction: Greg Thornton Construction
